Dit object is nu niet in het museum te zien | |
Vervaardiger | Aldo Rossi (kunstenaar) (1931 - 1997) |
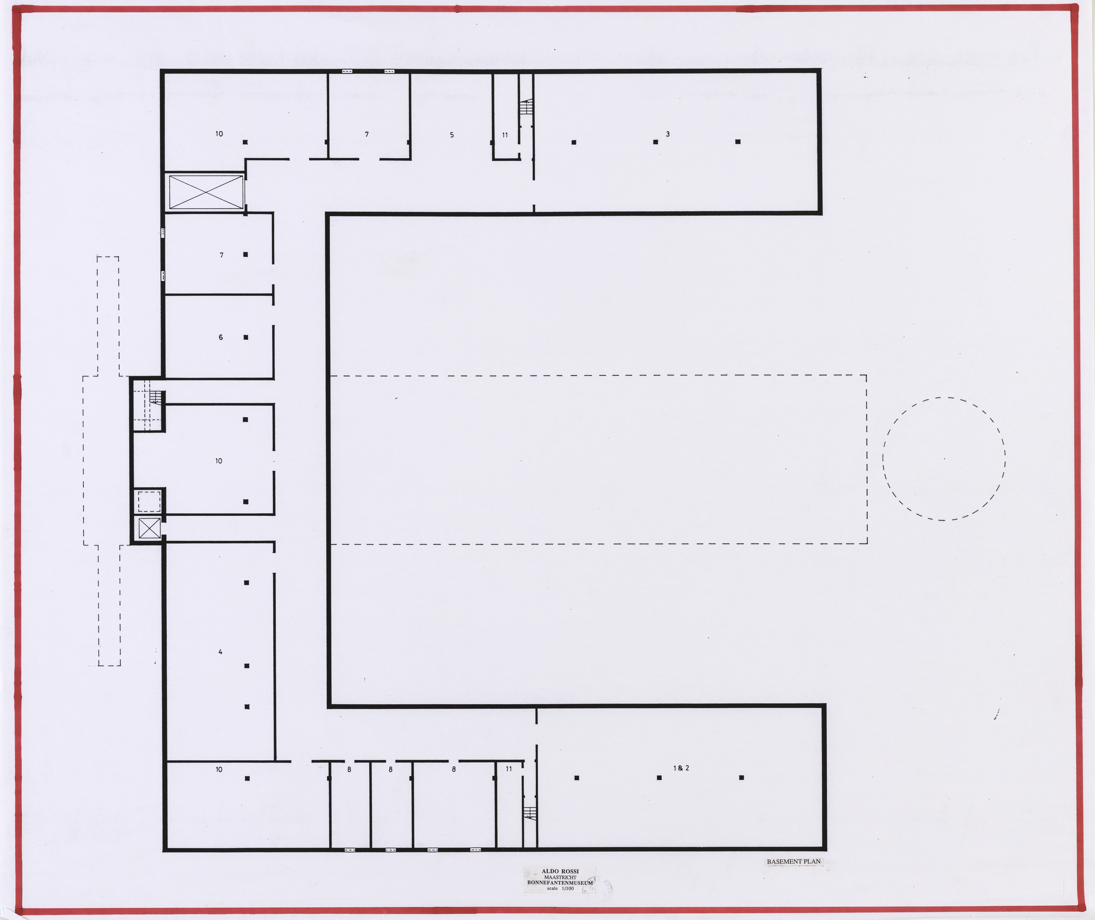
Titel | Ontwerp Bonnefantenmuseum I: plattegrond kelderverdieping |
Objectcategorie | werken op papier |
Objectnaam | |
Datering | 1990 |
Materialen | |
Techniek | |
Afmetingen | Hoogte: 91 cm (geheel) Breedte: 106 cm (geheel) |
Credit line | Collectie Bonnefanten. |
Objectnummer | 1003727-a |
Vragen? | Ziet u een fout? Of heeft u extra informatie over dit object? Laat het ons weten! |
