Dit object is nu niet in het museum te zien | |
Artist | Aldo Rossi (kunstenaar) (1931 - 1997) Aldo Rossi (kunstenaar) (1931 - 1997) |
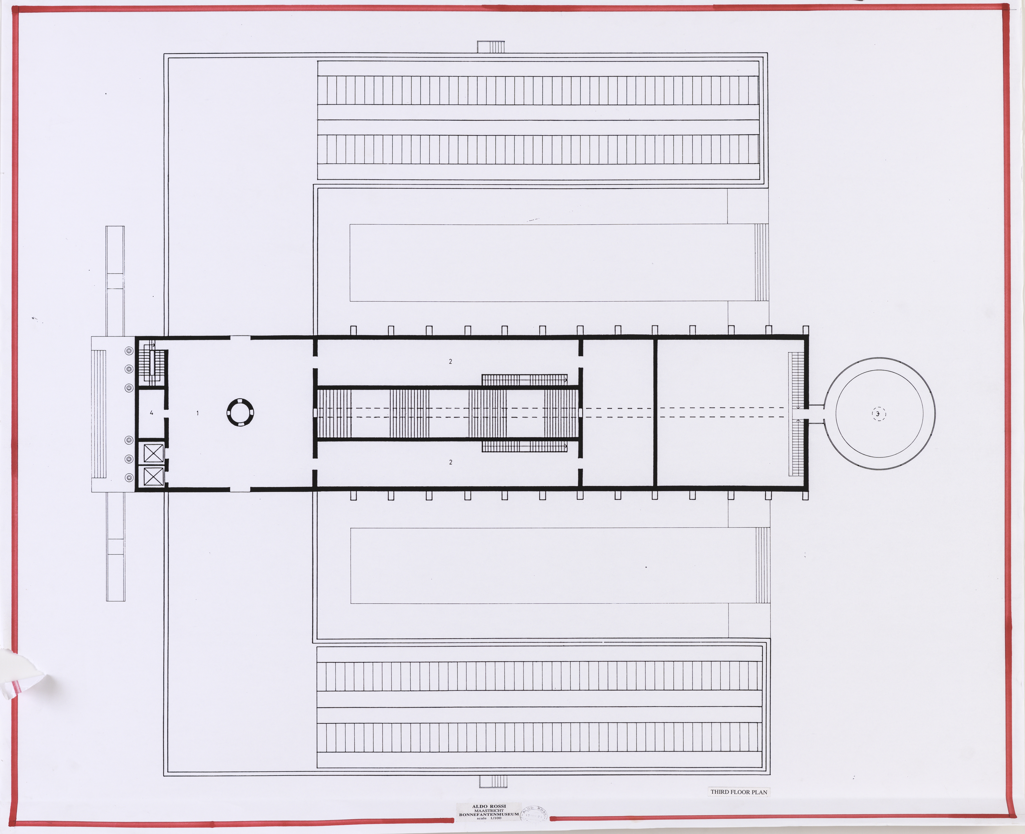
Title | Ontwerp Bonnefantenmuseum I: plattegrond derde verdieping |
Object category | werken op papier |
Object type | |
Dating | 1990 |
Materials | |
Technique | |
Acquisition | schenking 1990 |
Dimensions | Hoogte: 91 cm (geheel) Breedte: 108,5 cm (geheel) |
Credit line | Collectie Bonnefanten. |
Object number | 1003727-e |
Questions? | Do you have a remark or extra information on this object? Please let us know! |
